مدارهای پمپاژ و پمپهای سانتریفوژ، به دلیل داشتن قطعات دوار، اغلب بهعنوان یکی از منابع ایجاد نویز در تاسیسات ساختمانهای مسکونی شناخته میشوند. لازم است بدانیم که تولیدکنندگان پمپ تلاش زیادی کردهاند تا محصولاتی با کمترین صدای مزاحم ارائه دهند، اما انتخاب، نصب یا بهرهبرداری نامناسب پمپها نیز میتواند عامل اصلی ایجاد مشکل صدا باشد.
1- موقعیت نصب پمپ
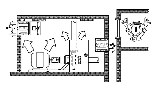
اگرچه بسیاری از پمپهای مدرن سر و صدای بسیار کمی دارند، اما بهتر است هنگام جانمایی تجهیزات، بهخصوص در ساختمانهای مسکونی، آموزشی یا بیمارستانها، تا حد امکان بین پمپها و ساکنان فاصله وجود داشته باشد. ترجیح بر آن است که پمپها در یک اتاق دربسته (البته با تهویه مناسب) قرار داشته باشند. اگر این امکان وجود نداشت برای کم کردن انتقال صدا توسط امواج، با استفاده از یک حائل مثل یک دیواره، محل قرارگیری پمپها را از اطراف جدا کنید.
2- خرید پمپهای کم صدا با سایز مناسب
تجربه نشان داده که خرید یک پمپ مدرن و بی صدا اگر چه گرانتر، مقرون به صرفهتر است تا استفاده از روشهای مختلف برای کم کردن صدای پمپهای معمولی. به این دلیل در زمان خرید پمپ، همیشه باید اطلاعات مربوط به سطح نویز تولیدی آنها را هم در نظر داشته باشید.
ایراد دیگری که به فراوانی رخ میدهد، انتخاب پمپ بزرگتر از اندازه مورد نیاز است. این امر میتواند به دلیل خطا یا عدم اطمینان به محاسبات پیش آید. بهیاد داشته باشید پمپ دستگاهی است که اگر بدون دلیل بزرگ انتخاب شود، علاوه بر هزینه اولیه بالاتر برای خرید و عمر کوتاهتر آن، باعث افزایش قابل توجه ارتعاشات میشود. یک مزیت پمپهایی که قابلیت تغییر دور دارند آن است که در صورت نیاز میتوان با کم کردن دور از اینگونه عارضهها جلوگیری کرد.
3- تعمیر و نگهداری برنامهریزی شده
برای جلوگیری از افزایش صدای پمپ ها، یک برنامه منظم برای نگهداری و بازرسی همه تجهیزات مدار پمپاژ، تنظیم کنید تا با سرویس بهموقع، کارکرد تجهیزات بهدرستی انجام شود. به این ترتیب سطح صدا و لرزش در محدوده کنترل شده حفظ خواهد شد.
روشهای انتقال صدا
الکتروپمپها علاوه بر کاربردشان، ممکن است منبع صداهای آزاردهندهای باشند که از راههای مختلفی منتقل میشوند. شناخت این مسیرها و روشهای کاهش صدا، برای حفظ آرامش محیط ضروری است. در ادامه به مهمترین روشهای انتقال صدای پمپ و راهکارهای کاهش آن اشاره میشود.
انتقال مستقیم صدای الکتروپمپ
یک دلیل صدای اضافی پمپها، ایراد در بیرینگ آنهاست که ممکن است آسیب دیده باشد و باید تعویض شود. صدای معمول در موتورها جریان هوایی است که توسط فن پشت موتور برای خنککاری از روی آن عبور میکند.
قرار دادن پمپ در یک اتاق جداگانه با صداگیر در قسمت تهویه و درب ضد صدا مقدار نویز را تا ۳۰ دسی بل کاهش میدهد.

در صورتیکه امکان قرار دادن پمپ در یک اتاق بسته وجود ندارد با قراردادن یک حائل بین پمپ و بخشهای مسکونی، صدا تا ۱۰ دسیبل کم خواهد شد.

انتقال سازهای صدای الکتروپمپ
اگر پمپهای بزرگ بدون لرزهگیر مناسب روی زمین قرار گیرند، انتقال لرزشهای پمپ از طریق سازه میتواند باعث از بین رفتن آرامش ساکنان شود. در پمپهای بزرگ لازم است نصب روی فونداسیون مناسب انجام شود.

انتقال صدا از طریق لولهها
عبور جریان آب باعث ایجاد لرزش در لولهها میشود بهخصوص در سرعت بالا و یا هنگام عبور آب از اتصالات و زانوییها. بنابراین سرعت آب در لولهها نباید بیش از ۲ متر بر ثانیه باشد و تا حد امکان نباید از زانویی با شعاع خم کوچک استفاده شود. همچنین لولهها را باید با بست مناسب به دیوار یا سقف مهار کرد. وجود روکش لاستیکی باعث جذب لرزش لولهها شده و از انتقال صدا به سازه جلوگیری میکند.
بیشتر بخوانید: سوپرفیکس چیست؟
برای انتخاب و نصب پمپ این موارد را همیشه بهیاد داشته باشید:
* پمپ با سایز مناسب و از نوع کم صدا انتخاب کنید.
* از لرزهگیر مناسب بین خطوط لوله استفاده کنید.
* پمپ را تا حد امکان دور از ساکنان و در محیطی ایزوله قرار دهید.
* از لرزهگیر مناسب زیر شاسی پمپ استفاده کنید.
* وضعیت پمپ را بهطور مرتب کنترل کنید.
* لولهها را به شکلی موثر به دیوار مهار کنید.
پمپهای ویلو در راستای ماموریت سوپرپایپ برای ارائه محصولات باکیفیت و راهحلهای متفاوت برای صنعت تاسیسات کشور عرضه شده است. شرکت Wilo آلمان از برترین تولیدکنندگان پمپ و سیستمهای پمپاژ برای مصارف گرمایش، سرمایش و تهویه مطبوع و نیز سیستمهای آب و فاضلاب در جهان است که رهبری بخش گرمایش، تهویه و سرمایش بازار را در اختیار دارد.
شرکت پیشرو الکتروپمپ وینا به عنوان زیر مجموعه گروه صنعتی پمپ وینا مرجع تخصصی پمپ ایران و شریک تجاری شرکت سوپرپایپ اینترناشنال با سالها تجربه در صنعت تاسیسات، طیف گستردهای از الکتروپمپهای سانتریفیوژ آبرسانی برند ویتو را با کیفیت صادراتی، راندمان حداکثری، طول عمر بالا و قیمت رقابتی تولید و عرضه می نماید.





